icon

Ako zmeniť dispozíciu bytu?

avatar
casia999
1. mar 2026

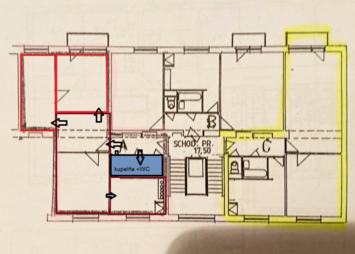
Ahojte, prosím poraďte mi ako zmeniť dispozíciu tohto 3izbového bytu A(ružový), keď by som najradšej zväčšila a spojila kúpeľňu s wc o ten malý prechod do kuchyne, tým pádom by musela byť zo spálne obývačka,ale bez balkónu. Chodba je dosť stiesnená, nejaké skrine tam velmi nehrozia. Žiaden kumbál ani špajz tento byt nemá, preto premýšľam zbúrať priečku medzi väčšími izbami a zväčšiť obývačku od kuchyne a do medzipriestoru medzi nimi dať obojstranné skrine 🫣 Nemáte niekto prerobený podobný byt? Každá inšpirácia poteší. Ďakujem

Ako zmeniť dispozíciu bytu?
avatar
viestta
1. mar 2026

@casia999 najprv to ries so statikom, pretoze vstup do kuchyne by si musela spravit v nosnej stene

avatar
zalka
1. mar 2026

@casia999 a ako sa dostaneš do kuchyne... Z tej izby nemáš dvere do kuchyne a z nákres je vidno, že je to nosná priečka...
Tu medzi izbami zbúrať môžeš ta je nenosna.

avatar
zalka
1. mar 2026

@casia999 a to zo spálne s balkónom budeš mat prechod do tej tretej izby?
Tam moc dispozíciu nezmeníš skrz tu prechodziu izbu.

avatar
casia999
autor
1. mar 2026
@viestta

@casia999 najprv to ries so statikom, pretoze vstup do kuchyne by si musela spravit v nosnej stene

@viestta Áno, to určite riešiť budem, zatiaľ sa len informujem

avatar
casia999
autor
1. mar 2026
@zalka

@casia999 a to zo spálne s balkónom budeš mat prechod do tej tretej izby?
Tam moc dispozíciu nezmeníš skrz tu prechodziu izbu.

@zalka Áno tam vzadu by bola len pracovňa, dielnička

avatar
casia999
autor
1. mar 2026
@zalka

@casia999 a ako sa dostaneš do kuchyne... Z tej izby nemáš dvere do kuchyne a z nákres je vidno, že je to nosná priečka...
Tu medzi izbami zbúrať môžeš ta je nenosna.

@zalka Áno budem riešiť statika, zatiaľ sa len informujem či to niekto už takto robil

avatar
zalka
1. mar 2026
@casia999

@zalka Áno tam vzadu by bola len pracovňa, dielnička

@casia999 aha ze nie dáka detská izba... Tak potom to zmysel má... Len bez stavebného povolenia a statika sa nepohnes.

avatar
ouwecka
1. mar 2026

@casia999 co je nosna priecka musis najprv vedieť ze co mozes a nemozes zburat a presunut,kuchyna s obyvackou ti nevadi aby boli spojene a otvorene? Spalna s balkonom som pochopila hej

avatar
ouwecka
1. mar 2026

@casia999 alw ja pozeram ze ruzovy je dvijizbovy nie 3

avatar
wandaw
1. mar 2026
@casia999

@zalka Áno budem riešiť statika, zatiaľ sa len informujem či to niekto už takto robil

@casia999 ahoj, a ktore to je poschodie? Nieco podobne sme robili, akurat tam ale dvere do kuchyne boli aj z tej vedlajsej izby.

avatar
evkatk
1. mar 2026

Je ten byt celý z tehál? Potom prerábka nie je problém. Ak ide o panelák, je to horšie, ale hodne drahé. V paneláku je statika bytu viazaná na nosné steny. Najprv je potrebné dať vypracovať statický posudok, potom je treba dať vypracovať projekt pri rozsiahlej prerábke, akú chceš architektovi. Až na základe týchto dokumentov stavebný úrad vydá povolenie na prestavbu bytu s tým, že zásahom do nosnej steny je potrebná jej výstuž a to nie je lacné, cca 30 000 Sk len tá výstuž. Celá prerábka, akú opisuješ by spolu so statickou analýzou a projektom prestavby vyšla takmer na 100 000Eur. Byt v paneláku je treba si vyberať kúpou a nespoliehať sa na prerobenie.

avatar
casia999
autor
1. mar 2026
@ouwecka

@casia999 alw ja pozeram ze ruzovy je dvijizbovy nie 3

@ouwecka Nie, trojizbový je, alebo skôr 2,5

avatar
casia999
autor
1. mar 2026
@evkatk

Je ten byt celý z tehál? Potom prerábka nie je problém. Ak ide o panelák, je to horšie, ale hodne drahé. V paneláku je statika bytu viazaná na nosné steny. Najprv je potrebné dať vypracovať statický posudok, potom je treba dať vypracovať projekt pri rozsiahlej prerábke, akú chceš architektovi. Až na základe týchto dokumentov stavebný úrad vydá povolenie na prestavbu bytu s tým, že zásahom do nosnej steny je potrebná jej výstuž a to nie je lacné, cca 30 000 Sk len tá výstuž. Celá prerábka, akú opisuješ by spolu so statickou analýzou a projektom prestavby vyšla takmer na 100 000Eur. Byt v paneláku je treba si vyberať kúpou a nespoliehať sa na prerobenie.

@evkatk Byt je tehlový

avatar
btus
1. mar 2026

ja by som to vyriešila nejak takto:

anonym_fb543a
1. mar 2026

Tu nájdeš veľa inšpirácií k prerobenym bytom https://www.idnes.cz/bydleni/panelak . Len sa tym treba preklikat ktorá dispozícia je podobná vašej. Ak ide o panelák, určite narazis aj na podobné. Inšpirácie sú tam nie len na dispozíciu ale aj na dizajn interiéru.

anonym_f81d4a
1. mar 2026

@casia999
Mam docela inu ale nechce sa mi dat pridat?

avatar
aalt
1. mar 2026

V takom nejakom som bol v podnajme. Bol v povodnom stave ale mal dvere do kuchyne z tej izby. A tusim nosne boli iba tie vodorovne priecky. Ta mala izba bola zufalo mala. Ake tam su priblizne rozmery?

avatar
marce63
1. mar 2026

Ja by som nerozbúrala celý byt. Prerobila by som len plochu kúpeľne a kuchyne. Rozdeliť túto plochu priečkou, za stupačkou umiestniť vaňu, umývadlo, pračku a hlavný benefit, kupeľňa bude mať okno.
V kuchynskej časti umiestniť len kuchynskú linku s príslušenstvom a osadiť ďaľšiu časť okna.
Jedálenský stôl umoestniť do obývačky. Ak nepotrebueš detskú izbu, z tej mini izbičky sprav
pracovňu, šatník, alebo kumbál.🍀

avatar
casia999
autor
1. mar 2026
@aalt

V takom nejakom som bol v podnajme. Bol v povodnom stave ale mal dvere do kuchyne z tej izby. A tusim nosne boli iba tie vodorovne priecky. Ta mala izba bola zufalo mala. Ake tam su priblizne rozmery?

@aalt Asi 2x4m

avatar
zuzike123
1. mar 2026

Mali sme taky byt az na tu miniizbu. Kuchyna bola spojena s obyvackou, do kuchyne sa teda slo tych par krokov navyse ceez obyvku. Mas to peone zakreslene vyssie tym cervenym. A kupelna bola potiahnuta az k obyvackovej stene, co bolo super, lebo ju to zvacsilo.

anonym_f81d4a
1. mar 2026

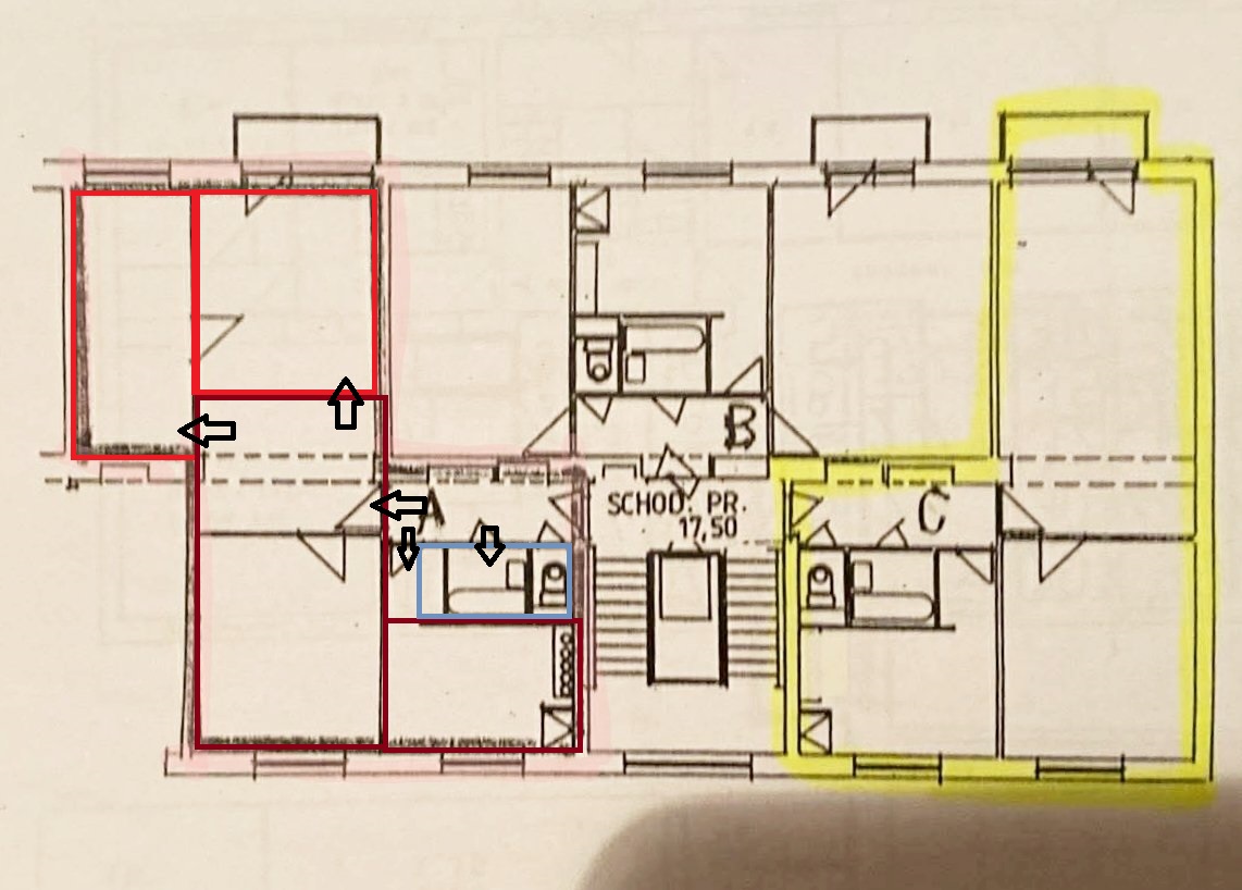
tu je moja cmaranica podobne do kuchyne z obyvacky a zvacsit kupelnu

avatar
btus
1. mar 2026
@anonym_f81d4a

tu je moja cmaranica podobne do kuchyne z obyvacky a zvacsit kupelnu

@anonym_f81d4a nemôže sekat do panelu medzi obývačkou a kuchyňou. Je to nosný poanel. Iba ak by povolil statik a isto by to nebolo tak veľké.

anonym_0ce9fc
1. mar 2026

@casia999
Ja by som zvacsila kupelnu a ten kusok chodby, tam by sa zmestila praca/ susicka.
Vstup do kuchyne cez obyvacku. Ajked by to bil nosny panel da sa to, videla som tske byty. Pripadne tam spravit zasuhovacie dvere - ked chces kuchynu zatvoris
Spalnu nechaj tak ako je povodne. Ta malicka izba moze casom sluzit ako detska izba.

anonym_f4b2db
1. mar 2026
@btus

@anonym_f81d4a nemôže sekat do panelu medzi obývačkou a kuchyňou. Je to nosný poanel. Iba ak by povolil statik a isto by to nebolo tak veľké.

@btus
Viem , preto by som tam dala co prichadza znova do mody klenity priechod, aby sa ulachcil statikov navrh

avatar
natalka13
1. mar 2026
@btus

@anonym_f81d4a nemôže sekat do panelu medzi obývačkou a kuchyňou. Je to nosný poanel. Iba ak by povolil statik a isto by to nebolo tak veľké.

@btus nieje to panelak.

avatar
btus
1. mar 2026
@natalka13

@btus nieje to panelak.

@natalka13 to nevadí, aj murovaný dom má nosné steny a priečky. Zle som sa teda vyjadrila, nemôžete sekať do nosnej priečky.

avatar
btus
1. mar 2026

@anonym_f81d4a
@autorka takže potom asi takto by to mohlo byť? 1 alebo 2? 2 v závislosti, čo by ti povedal statik,

anonym_bdecc5
2. mar 2026

@casia999 mali sme podobnu dispoziciu (menili sme 2i byt na 3i - rozloha 68m2). Kupelnu sme zvacsili presne o ten prechod do kuchyne. Z povodnej kuchyne vznikla spalna, kuchyna sa presunula do obyvacky, kedze tam bol dost velky priestor (vstup do spalne bol z kuchyno-obyvacky).